 |
08.10.2014, 13:52
|
#1
|
|
Живу я тут
Реєстрація: 16.10.2008
Звідки Ви: Киев
Дописи: 565
сказав Дякую: 62
сказали Дякую 230 раз(и) в 148 повідомленні
|
Нужен инкубатор для науплий артемии под заказ! ===www.aquaforum.ua===
Добрый день,
Уважаемые форумчане, нуждаюсь в удобном и компактном устройстве "Инкубатор".
Ранее использовал инкубатор, сделанный из пластиковых бутылок.
Надоело использовать то, что:
- разваливается,
- шумит
- с чего висит кучу проводов шлангов
- что постоянно нужно разбирать и собирать полностью при мойке резервуара.
- и при этом всем получить чистых науплий не всегда получается.
Собственно что хотелось бы:
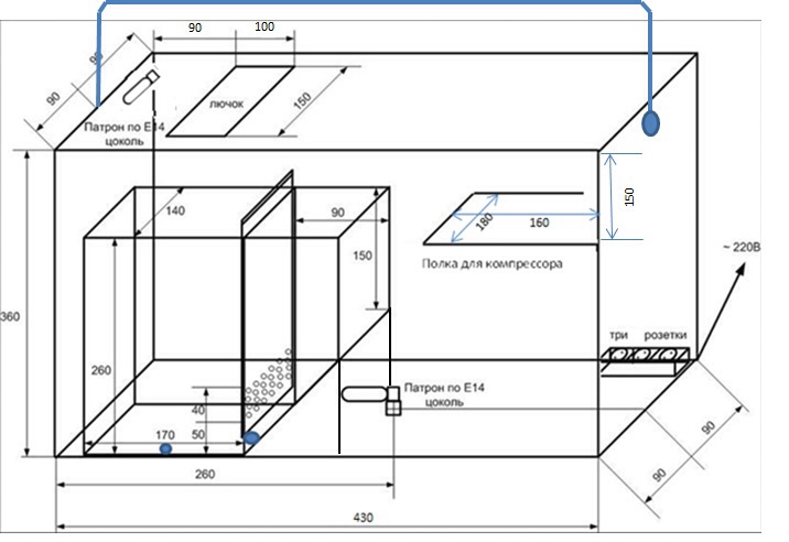
1. Сделать из акрила емкость (инкубатор) в которой будет два отсека: - малый для рачков, - по больше для зарядки яиц. Между ними стационарная перегородка и выдвижная. На стационарной перегородке полоса с отверстиями диаметром 2-3мм.
2. Сделать из акрила короб, в котором будет вмонтировано оборудование (лампочки, компрессор, розетки) для инкубатора и собственно он сам. Короб должен иметь приличный вид, поэтому его нужно будет чем-то обклеить.
В приложении указан рисунок/чертеж.
Описание приложения:
Внешние линии это ящик, который будет скрывать все коммуникации, а так же удобство при переносе сего аппарата.
Коробка внутри ящика - это и есть сам инкубатор.
Он состоит из двух отсеков: большого и маленького, которые в рабочем состоянии будут заполнены соленой водой. Для каждого отсека нужна крышка, что бы не было испарений и брызг от аэрации.
Большой отсек служит основным местом где вылупливаются рачки артемии (науплии).
В нем должна быть хорошая аэрация ( будет компрессор), температура воды 27-28С (будет обогреватель) и свет на рисунке видно лампочки. За 24 часа из яиц Артемии вылупливаются рачки. И новый отсек, как раз таки служит для того, что бы из грязной воды большого отсека получить чистых рачков. Между отсеками есть перегородка, которая не просвещается, она состоит из двух пластин. Одна из них цельная, т.е. закрывает доступ между отсеками, а вторая имеет полоску 4 см с отверстиями 2-3мм в нижней части платины. Живые рачки тянутся к свету поэтому для получения рачков необходимо выключить аэрацию и свет в большом отсеке, открыть перегородку т.е. доступ к отверстиям и вкл. свет в маленьком отсеке. Таким образом, все живые рачки переберутся в маленький отсек.
Маленький отсек служит не только получением рачка, но и хранением его в нем. Для сохранения рачка также нужна аэрация. Далее, что бы помыть большой отсек и слить рачков с маленького отсека, нужны краны и трубки для слива (диаметр 7-8 мм). В маленьком отсеке дно сделано скошенным - это нужно для хорошего слива рачков. А то они могут оставаться по углам.
На коробе сверху сделан лючок - это для удобства залива воды, мытья и зарядки яиц.
Также на внешнем коробе необходима жесткая ручка, поскольку инкубатор внутри находиться не по центру может быть перевес.
|
|
|
09.10.2014, 01:13
|
#2
|
|
Живу я тут
Реєстрація: 21.10.2011
Звідки Ви: Лозовая
Дописи: 1.051
сказав Дякую: 571
сказали Дякую 607 раз(и) в 551 повідомленні
|
Відповідь: Нужен инкубатор для науплий артемии под заказ! ===www.aquaforum.ua===
Вот тут на аукционе продают - посмотри, может подойдет: http://www.aquaforum.ua/auction/auct...р-для-артемии/
|
|
|
|
cказали "Дякую" Oven-loz за цей допис:
|
|
09.10.2014, 09:04
|
#3
|
|
Живу я тут
Реєстрація: 23.11.2008
Звідки Ви: Вараш {Кузнецовск}
Дописи: 112
сказав Дякую: 41
сказали Дякую 40 раз(и) в 39 повідомленні
|
Re: Нужен инкубатор для науплий артемии под заказ! ===www.aquaforum.ua===
|
|
|
|
cказали "Дякую" mels за цей допис:
|
|
09.10.2014, 10:20
|
#4
|
|
Запорожский клуб аквариумистов
Реєстрація: 01.02.2007
Звідки Ви: Запорожье
Дописи: 307
сказав Дякую: 347
сказали Дякую 576 раз(и) в 181 повідомленні
|
Re: Нужен инкубатор для науплий артемии под заказ! ===www.aquaforum.ua===
Обратитесь к red1157. Александр из акрила Вам все что угодно изготовит.
В качестве оффтопа, сори, выскажу свою ИМХУ - данная конструкция станет очень дорогим памятником инкубатору артемии.
В первую очередь потому, что не будет обеспечивать Вас науплией непрерывно (в зависимости от качества яиц и времени выклева необходимо иметь от двух до четырех емкостей, у Вас такая емкость одна). Во вторую неудобством обслуживания (при перезарядке инкубатора его нужно хорошо вымыть, иначе через два три дня там такая вонь будет). В третью своей небезопасностью (думаю, что категорически недопустимо в замкнутом пространстве с большой влажностью, еще и соленой наличие лампочек, розеток, компрессора).
Все требования к инкубатору, высказанные Вами вполне можно реализовать на пластиковых бутылках. Да и стоимость будет намного демократичнее.
Еще раз хочу подчеркнуть, ИМХО.
__________________ 
|
|
|
|
Ці 3 користувач(ів) сказали Дякую Rom за це повідомлення:
|
|
09.10.2014, 10:30
|
#5
|
|
Живу я тут
Реєстрація: 15.10.2012
Звідки Ви: Харьков
Дописи: 4.424
сказав Дякую: 3.856
сказали Дякую 2.131 раз(и) в 1.212 повідомленні
|
Re: Нужен инкубатор для науплий артемии под заказ! ===www.aquaforum.ua===
С пластиковыми боклажками ни каких проблем, все отлично работает и ничего не откуда не выпадает и брызги не куда не летят.
|
|
|
09.10.2014, 16:41
|
#6
|
|
Guest
|
Re: Нужен инкубатор для науплий артемии под заказ! ===www.aquaforum.ua===
Цитата:
Допис від Vasily
нуждаюсь в удобном и компактном устройстве "Инкубатор".
|
Я раньше разводил в бутылках и бутыльке, сейчас установил JBL Artemio1 3 штуки, закрепил сбоку на стойку с аквариумами очень удобно. Запускаю каждую емкость с разницей в 2 дня.

покупал тут http://www.arowana-im.com.ua/product...oducts_id=8930
|
|
|
|
|
cказали "Дякую" за цей допис:
|
|
09.10.2014, 16:42
|
#7
|
|
Живу я тут
Реєстрація: 17.09.2004
Звідки Ви: Киев, Троещина
Дописи: 14.486
сказав Дякую: 4.642
сказали Дякую 8.508 раз(и) в 4.382 повідомленні
|
Re: Нужен инкубатор для науплий артемии под заказ! ===www.aquaforum.ua===
__________________
Страна не ублюдков и не воров.
__________________  
|
|
|
|
Ці 2 користувач(ів) сказали Дякую Sem за це повідомлення:
|
Rom (09.10.2014), чмо (13.03.2015) |
09.10.2014, 22:00
|
#8
|
|
Живу я тут
Реєстрація: 16.10.2008
Звідки Ви: Киев
Дописи: 565
сказав Дякую: 62
сказали Дякую 230 раз(и) в 148 повідомленні
|
Re: Нужен инкубатор для науплий артемии под заказ! ===www.aquaforum.ua===
Konstantin L,
Подогрев не ставите?
|
|
|
09.10.2014, 22:02
|
#9
|
|
Живу я тут
Реєстрація: 16.10.2008
Звідки Ви: Киев
Дописи: 565
сказав Дякую: 62
сказали Дякую 230 раз(и) в 148 повідомленні
|
Re: Нужен инкубатор для науплий артемии под заказ! ===www.aquaforum.ua===
Цитата:
Допис від uJLuXa
С пластиковыми боклажками ни каких проблем, все отлично работает и ничего не откуда не выпадает и брызги не куда не летят.
|
Это если стационарно закрепить.... Или подставку делать.
Без них 4 грелки разбил за 3 года.
|
|
|
|
cказали "Дякую" Vasily за цей допис:
|
|
09.10.2014, 22:16
|
#10
|
|
Придивляюся
Реєстрація: 11.04.2014
Звідки Ви: Украина, Винницкая область
Дописи: 70
сказав Дякую: 36
сказали Дякую 52 раз(и) в 30 повідомленні
|
Re: Нужен инкубатор для науплий артемии под заказ! ===www.aquaforum.ua===
Vasily, я пользовался инкубатором JBL Artemia, ставил рядом настольную лампу для подддержания температуры, но то ли готовая смесь не очень качественная / то же JBL /, но выход получался очень маленький(((( За все попытки один раз был более менее нормальный выход науплий , но я просто закинул смесь и не пользовался ни лампой , ни солнечным светом, даже не подходил к нему 2 суток....
|
|
|
|
cказали "Дякую" @Игорь@ за цей допис:
|
|
09.10.2014, 22:17
|
#11
|
|
Живу я тут
Реєстрація: 16.10.2008
Звідки Ви: Киев
Дописи: 565
сказав Дякую: 62
сказали Дякую 230 раз(и) в 148 повідомленні
|
Re: Нужен инкубатор для науплий артемии под заказ! ===www.aquaforum.ua===
Цитата:
Допис від Rom
Обратитесь к red1157. Александр из акрила Вам все что угодно изготовит.
В качестве оффтопа, сори, выскажу свою ИМХУ - данная конструкция станет очень дорогим памятником инкубатору артемии.
В первую очередь потому, что не будет обеспечивать Вас науплией непрерывно (в зависимости от качества яиц и времени выклева необходимо иметь от двух до четырех емкостей, у Вас такая емкость одна). Во вторую неудобством обслуживания (при перезарядке инкубатора его нужно хорошо вымыть, иначе через два три дня там такая вонь будет). В третью своей небезопасностью (думаю, что категорически недопустимо в замкнутом пространстве с большой влажностью, еще и соленой наличие лампочек, розеток, компрессора).
Все требования к инкубатору, высказанные Вами вполне можно реализовать на пластиковых бутылках. Да и стоимость будет намного демократичнее.
Еще раз хочу подчеркнуть, ИМХО.
|
Может я конечно ошибаюсь, что мне будет удобна данная конструкция...
Но что бы ее помыть достаточно открыть лючок и спустить краником все содержимое затем протереть губкой и смыть лейкой душа. А бутылки нужно выключить компрессор, разъединить все шланги, вытянуть грелку, методом переворачивания слить все содержимое, помыть и повторить все в обратном порядке. Также если науплии находятся в грязной воде они быстрее дохнут, а так они будут в отдельном отсеке. Резервуар достаточно большой поэтому одной порции хватает на несколько дней, после первого вылова я науплии замораживаю. На счет безопасности, в крышке лампочки установлены прямо над водой, а тут каждый отсек закрывается. Как вариант конечно можно сделать отделение для розеток и лампочки спрятать).
Также выклев рачков со светом должен быть лучше, чем без него.
За удобство готов заплатить).
В любом случае спасибо за комментарии.
|
|
|
10.10.2014, 10:12
|
#12
|
|
Запорожский клуб аквариумистов
Реєстрація: 01.02.2007
Звідки Ви: Запорожье
Дописи: 307
сказав Дякую: 347
сказали Дякую 576 раз(и) в 181 повідомленні
|
Re: Нужен инкубатор для науплий артемии под заказ! ===www.aquaforum.ua===
__________________ 
|
|
|
|
Ці 2 користувач(ів) сказали Дякую Rom за це повідомлення:
|
|
18.10.2014, 16:13
|
#13
|
|
Живу я тут
Реєстрація: 20.02.2011
Звідки Ви: Днепродзержинск
Дописи: 220
сказав Дякую: 43
сказали Дякую 101 раз(и) в 64 повідомленні
|
Re: Нужен инкубатор для науплий артемии под заказ! ===www.aquaforum.ua===
могу продать 2 инкубатора брал тут
http://aquaritm.com.ua/aquarium-fish...0x390x150.html
новый 500гр, упакую и отправлю по украине
|
|
|
 |
|
Тут присутні: 1 (учасників - 0 , гостей - 1)
|
|
|
| Параметри теми |
|
|
| Параметри перегляду |
Лінійний вигляд
|
Ваші права у розділі
|
Ви не можете створювати теми
Ви не можете писати дописи
Ви не можете долучати файли
Ви не можете редагувати дописи
HTML код Вимк.
|
|
|
Часовий пояс GMT +3. Поточний час: 09:48.
|