На головну сторінку Аквафорум
На головну сторінку




Назад   Аквафорум - форум акваріумістів та тераріумістів > Акваріум та обладнання > Аквариум

Примітки

Аквариум "Колбы", обсуждение аквариумов, полностью укомплектованных оборудованием, тумбы, материал для изготовления....

Зачинена тема
 
Параметри теми Параметри перегляду
Старий 07.10.2009, 23:28  
Мой новый аквариум 720 л.
 
Аватар для Sheva
Живу я тут

Реєстрація: 19.09.2009
Звідки Ви: Харьков
Дописи: 1.018
 

сказав Дякую: 137
сказали Дякую 426 раз(и) в 231 повідомленні
Sheva Sheva поза форумом 07.10.2009, 23:28
Рейтинг: (1 голосов - 5,00 средняя оценка)

Вот решил завести себе новый аквариум. Через два дня буду делать заказ.
Планирую такой 200см.*60см.*60см. = 720 л.
Единственное ,что смущает на такой аквариум сказали стекло 10 мм. Но я доверяю Акватике и расчитываю на их опыт. Как думаете ?

В связи с тем, что только переехали в квартиру, делаем ремонт, ограничен в финансах.Вот и определил для себя такой порядок действий.

1 - заказать банку
2 - сделать металлический каркас для тумбы
3 - сделать тумбу, т.е. зашить каркас в ДСП
4 - купить терморегулятор и фильтр
5 - купить дискусов шт.12 (почему именно так, потому, что хочу вырастить дискуса в пустой банке и денег пока подсобираю на лампы, светильники и крышку и считаю ,что проще вырастить в пустой т.к. проще уход и рыба не нуждается в камушках и растениях). А на данный момент просто сделаю какую-то простенькую крышку и установлю пару ламп дневного света.
6 - заказать нормальную крышку со светильниками и полностью доукомплектовать аквариум растениями, рыбками. (но думаю что по рыбкам будет так, взрослых дискусов шт.8 , неонов штук 120-150 и анцитрусов 3-4) Думаю неперезаселю так аквариум.

Планирую все сопровождать фотоотчетом.

Надеюсь , что благодаря Вашей помощи и подсказкам мои планы будут изменяться в лучшую сторону и переходить в реалии.

Переглядів: 77440
Ці 4 користувач(ів) сказали Дякую Sheva за це повідомлення:
Sanya2792 (05.11.2009), StepanS (24.12.2009), барабака (19.02.2010), Наташа Чорная (24.02.2010)
Старий 31.10.2009, 09:36   #31
Активний участник форуму
  
 
Реєстрація: 28.10.2009
Звідки Ви: Armenia
Дописи: 196
сказав Дякую: 134
сказали Дякую 38 раз(и) в 13 повідомленні
Надіслати повідомлення для biolog на Skype
Re: Мой новый аквариум 720 л. ===www.aquaforum.ua===

Поздровльаю !
плз сфоткаи нижний уголок банки у тя все стёкла приклеены над дном или по бокам ?
у меня аквас 150*80*27
Мініатюри долучень
Щоб збільшити малюнок, клацніть по ньому
Назва:  akvas.JPG
Переглядів: 1170
Розмір:  9,2 КБ
ID:	44889  


Востаннє редагував biolog: 31.10.2009 о 09:52..
biolog поза форумом  
Старий 31.10.2009, 09:56   #32
Живу я тут
  
 
Аватар для Sheva
 
Реєстрація: 19.09.2009
Звідки Ви: Харьков
Дописи: 1.018
сказав Дякую: 137
сказали Дякую 426 раз(и) в 231 повідомленні
Re: Мой новый аквариум 720 л. ===www.aquaforum.ua===

Цитата:
Допис від biolog Переглянути допис
Поздровльаю !
плз сфоткаи нижний уголок банки у тя все стёкла приклеены над дном или по бокам ?
у меня аквас 150*80*27
все стекла по бокам.
т.е. дно получается как бы внутри

Sheva поза форумом  
cказали "Дякую" Sheva за цей допис:
biolog (31.10.2009)
Старий 31.10.2009, 09:59   #33
Активний участник форуму
  
 
Реєстрація: 28.10.2009
Звідки Ви: Armenia
Дописи: 196
сказав Дякую: 134
сказали Дякую 38 раз(и) в 13 повідомленні
Надіслати повідомлення для biolog на Skype
Re: Мой новый аквариум 720 л. ===www.aquaforum.ua===

Цитата:
Допис від Sheva Переглянути допис
все стекла по бокам.
т.е. дно получается как бы внутри
А так как у меня, выдержит или лопнет ? потому что оно у меня немножко побольше

biolog поза форумом  
Старий 31.10.2009, 10:10   #34
Живу я тут
  
 
Аватар для Sheva
 
Реєстрація: 19.09.2009
Звідки Ви: Харьков
Дописи: 1.018
сказав Дякую: 137
сказали Дякую 426 раз(и) в 231 повідомленні
Re: Мой новый аквариум 720 л. ===www.aquaforum.ua===

Цитата:
Допис від biolog Переглянути допис
А так как у меня, выдержит или лопнет ? потому что оно у меня немножко побольше

Я не буду Вам советовать, т.к. банку делал не сам.
Делали в Акватике - думаю , что делали так как за основу брали опыт и то, что если так клеится дно то швы получаются шире и больше площадь склеивания.
т.е. тут скорее речь идет не о треснет ли , а выдержат швы. (думаю так ))
Мініатюри долучень
Щоб збільшити малюнок, клацніть по ньому
Назва:  Безымянный.JPG
Переглядів: 1061
Розмір:  6,4 КБ
ID:	44890  

Sheva поза форумом  
cказали "Дякую" Sheva за цей допис:
biolog (31.10.2009)
Старий 31.10.2009, 10:18   #35
Активний участник форуму
  
 
Реєстрація: 28.10.2009
Звідки Ви: Armenia
Дописи: 196
сказав Дякую: 134
сказали Дякую 38 раз(и) в 13 повідомленні
Надіслати повідомлення для biolog на Skype
Re: Мой новый аквариум 720 л. ===www.aquaforum.ua===

А специалисты что скажут ?

biolog поза форумом  
Старий 31.10.2009, 10:35   #36
Живу я тут
  
 
Аватар для Sheva
 
Реєстрація: 19.09.2009
Звідки Ви: Харьков
Дописи: 1.018
сказав Дякую: 137
сказали Дякую 426 раз(и) в 231 повідомленні
Re: Мой новый аквариум 720 л. ===www.aquaforum.ua===

Цитата:
Допис від biolog Переглянути допис
А специалисты что скажут ?
Будут вопросы по стеклу и силикону.
Думаю в теме поклейки аквариумов, будут все ответы.

Sheva поза форумом  
cказали "Дякую" Sheva за цей допис:
biolog (31.10.2009)
Старий 31.10.2009, 10:50   #37
Живу я тут
  
 
Аватар для Н.Н.
 
Реєстрація: 28.01.2006
Звідки Ви: Тирасполь (Приднестровье)
Дописи: 469
сказав Дякую: 109
сказали Дякую 481 раз(и) в 166 повідомленні
Надіслати повідомлення для Н.Н. на Skype
Re: Мой новый аквариум 720 л. ===www.aquaforum.ua===

Моя статья с описанием изготовления длинного аквариума вышла в журнале АКВАИУМ №4
Делаем трёхметровый аквариум

Н.Тарасенко
echinodorus@list.ru
Существует мнение, что аквариумы длиной более 1,5 метра - это что-то монументальное, дорогостоящее и доступное чуть ли не только «новым русским». Цены в аквариумных салонах укрепляют это мнение.
Я имею все основания утверждать, что аквариум длиной 2,4 метра обходится не дороже двух аквариумов по 1,2 метра. Если вы уже сделали самостоятельно аквариум длиной 1 метр объемом 150-200 литров, уверяю, можете смело браться за емкость длиной 2-3 метра объемом 700-1000 литров. Это вам по силам! Прежде чем дать конкретные рекомендации по изготовлению длинного аквариума, позволю себе некоторые отступления.
Любое инженерное сооружение, для успешного функционирования, требует верного расчета (именно верного, а не безмерно завышенного). Аквариум - не самая сложная конструкция и вполне поддается расчетам. Во многих изданиях по аквариумистике присутствуют таблицы для определения толщины стекла в зависимости от размеров аквариума. О большинстве из них не скажешь: «истина где-то рядом», она явно далеко. Даже если не применять ребра жесткости и стяжки, рекомендуемые данные очень завышены. Безусловно, надежность конструкции очень важна, особенно если сосед этажом ниже сделал «евроремонт». Но обеспечивается она не безумным запасом по толщине стекла, а верным расчетом и соблюдением технологии изготовления.
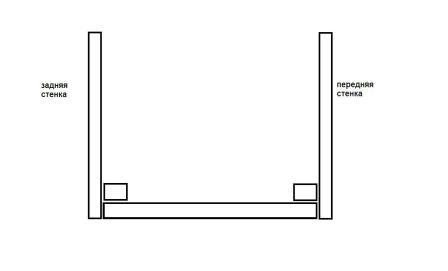
Итак: из каких конструктивных элементов состоит наш аквариум? Помимо стекла днища1, переднего, заднего2 и боковых (торцов)3 (схема 1), сюда входят усилители, которые делятся на ребра жесткости и стяжки (фото 4). Возможны решения без усилителей, но при большой длине аквариума - это не рационально.
Рассмотрим значение и устройство ребра жесткости. Его обычно изготавливают из стекла той же толщины, что и переднее. Ширина ребра жесткости принимается 7-10 величин его толщины. Ребро наклеивается, по верхней внутренней кромки переднего, заднего и торцевых стекол или на 5-10 мл ниже ее. Стяжки (иногда их называют перемычками) вклеиваются между задним и передним стеклами поверх ребер жесткости. Наличие стяжек затрудняет лов рыбы, но позволяет существенно снизить требуемую толщину переднего и заднего стекол. При наличии стяжек толщина необходимого стекла вычисляется из расчета расстояния от стяжки до стяжки, а не общей длины аквариума. То есть, если в аквариуме длиной 2 метра посередине предусмотрена стяжка, то необходима та же толщина переднего и заднего стекол, что в аналогичном аквариуме без стяжек длиной 1 метр.
Максимальная жесткость конструкции, достигается при расстоянии между стяжками равном высоте аквариума. При таком конструктивном решении толщину стекла стенок (о днище отдельный разговор) лимитирует только высота аквариума. При высоте до 40 см достаточно толщины стекла 4,5 мм; при 50 см - 6 мм; при 60 см - 7 мм; при 65 см - 8 мм (если вы так жаждите запаса, добавьте по 1мм, не более).
Ширина стяжек принимается 20 см при той же толщине, что и остальные стекла, если их несколько по 15 см.
Днище, как правило, трескается не от применения тонкого стекла, а от неровностей поверхности, на которой стоит аквариум. Тема изготовления надежной подставки требует написания отдельной статьи. Мы, не выходя за рамки обсуждения вопроса, поговорим об увеличении надежности днища. Для этой цели обычно применяют усилители дна, представляющие собой ребра жесткости, вклеенные вертикально, поперек аквариума. (схема 2)
Я придерживаюсь другой технологии: режу стекла дна поперек на равные полоски, длина которых не превышает ширину. Собираю части между собой, склеивая стык в стык. После окончания всех работ, для герметичности, наклеиваю полоски стекла по верхним соединениям. (схема 3) Строго говоря, жесткости это не предает, наоборот: конструкция становится более пластичной, что повышает устойчивость к изгибающим моментам (проще говоря, дает некоторую стойкость от перекосов). Днище аквариумов можно, в буквальном смысле, сделать из отходов. Не в ущерб его надежности (см. пример). Это тем актуальнее, чем больше длина аквариума. При соблюдении данной технологии для днища можно применять то же стекло, что и для стенок при ширине не более высоты. Если ширина будет больше, добавьте по 1мм к толщине днища, на каждые 10 см ширины, превышающей высоту.
Идеальным материалом для изготовления днища являются коленные стекла. Подходят стекла окон от списанных железнодорожных вагонов, автобусов, троллейбусов. Единственный недостаток - такие стекла не режутся, приходится использовать целиком, что иногда вносит коррективы в плане размеров. Несмотря на то, что толщина этих стекол относительно не велика (5-6 мм), их надежность абсолютна. Демонстрируя публике надежность нового аквариума, я не только ходил по его днищу, но даже прыгал на нем. Согласитесь, при моем почти центнерном весе, это впечатляет.
Теперь, кратко, о рекомендуемой длине. Если очень кратко, то чем больше, тем лучше. К сожалению обстоятельства ограничивают полет творческой фантазии. Кстати, стесненность жилищных условий, в данном случае, чаще надуманный предлог, чем реальный. У многих из нас стоят монументами, унаследованные от бабушек шкафы по 1,6-1,8 м длиной. Разберите этот шкаф и сделайте из него тумбу под аквариум. Вопрос с содержимым шкафа решится автоматически. А если еще выбросить журнальный столик, на котором все равно кроме пепельницы ничего не лежит, получим искомые 2,4-2,6 м. Теперь от животрепещущей жилищной темы к более прозаическим. Большинство аквариумистов подсвечивают свои емкости люминисцентными трубками. В этом случае длина аквариумов, должна быть «привязана» к размеру светильников. Лампы дневного света имеют длину 60, 90, 120, 150 см. Со светильником получается на 5-15 см больше, т.е. для аквариума длиной 160 см идеально подойдет светильник с лампами по 80Вт (длина 150 см), для двухметрового, по длине ставят два светильника с «тридцатками» (по 90 см), при длине аквариума 2,5-2,6 м, подойдут лампы 40(36)Вт (по 120см). Аквариумы, всех вышеупомянутых размеров, можно даже заносить (выносить) по лестницам стандартных многоэтажек. Поверьте на слово, мой аквариум длиной 2,4 м, благополучно «спустился» без лифта с 9 этажа, и затем «поднялся» на пятый. Конечно, такие аквариумы лучше изготавливать на месте и не переносить, но практика показала, что это возможно.
Если аквариум будет устанавливаться на первом этаже, можно делать на всю длину стандартного листа стекла 3210x2000 мм. Размер 3,2 м хорош еще и тем, что позволяет идеально разместить самые эффективные светильники с лампами дневного света на 80Вт (150см). Если вы любитель растений, то решайтесь сделать для своего подводного сада емкость 321x45x80 см (см. фото), вы об этом ни разу не пожалеете.
Пример №1: необходимо изготовить аквариум 160x50x50 см.
Закажите в стекольной мастерской, нарезать из стекла толщиной 6 мм следующие размеры: 160x50 см - 2 шт, 50x48,5 см - 2 шт. Стенки - есть. В этой же мастерской вам с удовольствием продадут по пол цены, или даже дешевле - обрезки (куски стекла шириной 5-25 см). В нашем деле отходов практически не бывает. Все сгодится. Полоски шириной 5-7 см пойдут на ребра жесткости, их длина для заднего и переднего стекла будет 158,5 см (ширина аквариума - минус толщина двух торцов 12 мм, двух клеевых швов 2 мм и 1мм минусовой допуск). Все, что вклеивается поперек - торцы, их ребра жесткости, стяжки имеет длину 48,5 см (ширина днища минус толщина переднего и заднего стекол, два клеевых шва, 1 мм - минусовой допуск). Выберем два обрезка шириной 15 см, отрезаем длину 48,5 - это две стяжки. Оставшиеся полосы стекла, нарезаются по длине по 50 см (наша ширина днища). Нарезанные заготовки склеиваются между собой, пока их общая ширина не составит 160 см. Изготовленное таким образом днище будет надежно служить, в то время как цельное днище для этого аквариума потребовало бы стекло толщиной 8 мм и предъявило бы более жесткие требования к подставке.
Пример №2: (любимое детище) 318x45x70 см.
При высоте 45 см достаточно толщины 6 мм, в случаи применения стяжек, каждые 55 см. Но листы стекла размером 3210x2000 мм, тоньше 8 мм не выпускаются. Самый большой, известный мне, лист «шестерки» имеет размер 2600x1800 мм (чаще 2400x1600 мм). Таким образом, толщина переднего и заднего стекла составила 8 мм.
Днище - шесть коленных стекол (от автобуса) размером 700x530 мм. Стекла укладываются поперек, получается днище 70x318 см. Из-за жесткой привязки к размерам коленного стекла пришлось пожертвовать тремя сантиметрами длины аквариума (318 вместо 321 см). Те, кто не любит широкие аквариумы, могут уложить стекла вдоль, получится ширина 53 см. Усилители нарезались из стекла битой витрины толщиной 7 мм. Из него же делались торцы. Ширина усилителей по всего периметру - 6 см. По расчету в Дворца детско-юношеского творчества данном случае достаточно одной стяжки посередине, для запаса поставили две по 20 см шириной (тонна воды все же).
Клей - аквасиликон фирмы Den Braven. Место склейки - буфет Дворца детско-юношеского творчества. Подсобная сила - несколько школьников. В общем, как видите, не боги горшки обжигают.
И еще один актуальный момент: сейчас в моде аквариумы необычной формы (многогранные, с передним сферическим стеклом и прочее). По моему глубокому убеждению, аквариум, прежде всего, должен быть красив внутри и только потом снаружи. Если наружная «красота» мешает восприятию внутренней, зачем нам такая «красота». Переднее стекло - это окно нашего подводного мира и чем больше граней, тем меньше окно. Все мы стараемся купить телевизор и монитор с плоским экраном, чтобы видеть мир без искажений. Зачем же нам искажения в подводном мире? Вывод может быть только один: если аквариум красив внутри, он должен быть «классический» - прямоугольный (точнее формы параллелепипеда). Если внутри смотреть не на что, ставка делается на оригинальность формы.
Возможно, какие-то моменты я изложил недостаточно ясно, но самой идеей заинтересовал. В этом случае, присылайте на мой электронный адрес данные по предполагаемым размерам аквариумов. Я сделаю и вышлю вам расчет и рекомендации.
В заключение статьи считаю своим долгом выразить благодарность моему другу Богач А.Г. за помощь в разработке и освоении оптимальной технологии изготовления аквариумов большой длины.
__________________
Заходите в гости http://echinodorus.ucoz.ru/ С уважением, Николай Николаевич.

Н.Н. поза форумом  
Ці 20 користувач(ів) сказали Дякую Н.Н. за це повідомлення:
ACN (31.03.2011), AndreiS (11.04.2010), astra (01.11.2009), biolog (31.10.2009), Darel (15.11.2009), fantom.83 (21.02.2010), Floyd (14.01.2011), IGI (14.01.2011), LIVEDnepr (10.11.2011), mak_sim (05.11.2009), medtehnik (29.10.2011), MI$H@ (31.10.2009), Sten (25.12.2009), Sventana (17.12.2009), Zort (19.02.2010), Андрей Коломиец (14.01.2010), Вальдемар (28.11.2010), НЕМО (05.11.2009), сандро (17.12.2009), Серж Ч (27.02.2013)
Старий 01.11.2009, 00:16   #38
Живу я тут
  
 
Аватар для Sheva
 
Реєстрація: 19.09.2009
Звідки Ви: Харьков
Дописи: 1.018
сказав Дякую: 137
сказали Дякую 426 раз(и) в 231 повідомленні
Re: Мой новый аквариум 720 л. ===www.aquaforum.ua===

Приступаю за изготовление тумбы и крышки.
Сегодня куплены балки для светильников.
Заказана столешница на тумбу.
Сделаны влагозащитные патроны.
Мініатюри долучень
Щоб збільшити малюнок, клацніть по ньому
Назва:  1..JPG
Переглядів: 1336
Розмір:  30,3 КБ
ID:	44961   Щоб збільшити малюнок, клацніть по ньому
Назва:  2..JPG
Переглядів: 1220
Розмір:  42,8 КБ
ID:	44962   Щоб збільшити малюнок, клацніть по ньому
Назва:  3..JPG
Переглядів: 1173
Розмір:  28,9 КБ
ID:	44963   Щоб збільшити малюнок, клацніть по ньому
Назва:  4..JPG
Переглядів: 1213
Розмір:  34,8 КБ
ID:	44964   Щоб збільшити малюнок, клацніть по ньому
Назва:  5..JPG
Переглядів: 1184
Розмір:  27,6 КБ
ID:	44965  

Щоб збільшити малюнок, клацніть по ньому
Назва:  PA313036.JPG
Переглядів: 1168
Розмір:  24,8 КБ
ID:	44966   Щоб збільшити малюнок, клацніть по ньому
Назва:  PA313037.JPG
Переглядів: 1422
Розмір:  21,2 КБ
ID:	44967  

Sheva поза форумом  
Ці 2 користувач(ів) сказали Дякую Sheva за це повідомлення:
Вальдемар (28.11.2010), сандро (17.12.2009)
Старий 01.11.2009, 11:29   #39
Живу я тут
  
 
Аватар для Tiran
 
Реєстрація: 20.03.2008
Звідки Ви: г.Харьков
Дописи: 128
сказав Дякую: 74
сказали Дякую 46 раз(и) в 25 повідомленні
Re: Мой новый аквариум 720 л. ===www.aquaforum.ua===

Вставлю и свои пять копеек.
Самый страшный перекос это "пропеллер" а особенно на такой длинне. Выставь тумбу по уровню. Поставь аквариум и проверь уровень. Залей водй аквариум на половину и дай постоять 2-3 дня. После этого проверь уровень. Если дома идет ремонт то пол там где планируется установить аквариум желательно выровнять (это если финансы не позволяют выровнять весь пол и сделать гидроизоляцию). Иначе потом прийдется подставлять о и подкладывать под тумбу всякое разное чтоб выровнять (полы то у нас в квартирах не ахти) а при такой длинне это будет проблематично.
Это первое что возникло у меня в голове во всяком случае я б делал так.
Удачи оч интересно посмотреть что будет дальше.
__________________
"Дорогу осилит идущий"

Tiran поза форумом  
Старий 01.11.2009, 14:25   #40
Живу я тут
  
 
Аватар для Sheva
 
Реєстрація: 19.09.2009
Звідки Ви: Харьков
Дописи: 1.018
сказав Дякую: 137
сказали Дякую 426 раз(и) в 231 повідомленні
Re: Мой новый аквариум 720 л. ===www.aquaforum.ua===

Цитата:
Допис від Tiran Переглянути допис
Вставлю и свои пять копеек.
Самый страшный перекос это "пропеллер" а особенно на такой длинне. Выставь тумбу по уровню. Поставь аквариум и проверь уровень. Залей водй аквариум на половину и дай постоять 2-3 дня. После этого проверь уровень. Если дома идет ремонт то пол там где планируется установить аквариум желательно выровнять (это если финансы не позволяют выровнять весь пол и сделать гидроизоляцию). Иначе потом прийдется подставлять о и подкладывать под тумбу всякое разное чтоб выровнять (полы то у нас в квартирах не ахти) а при такой длинне это будет проблематично.
Это первое что возникло у меня в голове во всяком случае я б делал так.
Удачи оч интересно посмотреть что будет дальше.
Спасибо, но у нас в квартире пол ахти
В доме сразу при сдаче была ровная стяжка.

Sheva поза форумом  
Старий 01.11.2009, 23:11   #41
Живу я тут
  
 
Реєстрація: 24.12.2008
Звідки Ви: .
Дописи: 430
сказав Дякую: 71
сказали Дякую 238 раз(и) в 125 повідомленні
Re: Мой новый аквариум 720 л. ===www.aquaforum.ua===

Цитата:
Допис від SPRINTER Переглянути допис
Лучше из профиля 20х20мм
Лично у меня такая же банка 2000 х 600 х600
И каркас под аквариум сделан из профиля 20 х 40 а также обшит дсп со всех сторон
Когда выбирал профиль 20 х 20 показался хлипковат.

Philips поза форумом  
cказали "Дякую" Philips за цей допис:
astra (01.11.2009)
Старий 05.11.2009, 02:18   #42
Живу я тут
  
 
Аватар для Senturio
 
Реєстрація: 19.02.2009
Звідки Ви: ХАРЬКОВ
Дописи: 2.388
сказав Дякую: 1.381
сказали Дякую 1.462 раз(и) в 710 повідомленні
Надіслати повідомлення для Senturio на ICQ Надіслати повідомлення для Senturio на Skype
Re: Мой новый аквариум 720 л. ===www.aquaforum.ua===

В новостройках проблема пола не стоит остро, единственное что замечено при сдаче дома его заселение и ремонты в квартирах происходят вразнобой, каждый все равно нагружает свою квартиру дополнительно стенами, иногда еще заливкой с керамзитом в итоге усадка дома идет столь же неравномерно. А когда еще начинают устанавливать джакузи с обьемом более 1000 л то происходят и более интересные случаи. У нас уже были случаи обвала в новостройках плит под такими гигантоманами. Так что "подводных" камней хватает чтобы задуматься о перестраховке.
__________________
Системы кондиционирования вентиляции отопления. Тепловые насосы - за ними будущее!!!

Senturio поза форумом  
cказали "Дякую" Senturio за цей допис:
Aquariumist \1607\ (05.11.2009)
Старий 05.11.2009, 12:39   #43
Registered User
  
 
Реєстрація: 02.04.2007
Звідки Ви: Николаев
Дописи: 508
сказав Дякую: 28
сказали Дякую 141 раз(и) в 87 повідомленні
Надіслати повідомлення для SPRINTER на Skype
Re: Мой новый аквариум 720 л. ===www.aquaforum.ua===

Обычно делаются не дополнительные стены, а вообще снос стен, иногда, несущих. В итоге ставишь баночку казалось бы возле несущей стены, а внизу декоративно-укрепленная пустота

SPRINTER поза форумом  
Старий 05.11.2009, 13:51   #44
Живу я тут
  
 
Аватар для Senturio
 
Реєстрація: 19.02.2009
Звідки Ви: ХАРЬКОВ
Дописи: 2.388
сказав Дякую: 1.381
сказали Дякую 1.462 раз(и) в 710 повідомленні
Надіслати повідомлення для Senturio на ICQ Надіслати повідомлення для Senturio на Skype
Re: Мой новый аквариум 720 л. ===www.aquaforum.ua===

Бывает и такое - но в основном в новостройках несущие колонны а стены токо торцевые могут нести нагрузку. И по поводу толщины перекрытия тоже можно целую тему открыть (да простят меня модераторы за откровения). Вот к примеру толщина перекрытия заливного типа колеблется от 170 до 240 мм и зависит это все от того же человеческого фактора А мы потом удивляемся на стройке чего это наши воздуховоды непомещаются под потолком
Мініатюри долучень
Щоб збільшити малюнок, клацніть по ньому
Назва:  Следы в бетоне.JPG
Переглядів: 1693
Розмір:  972,4 КБ
ID:	45474  
__________________
Системы кондиционирования вентиляции отопления. Тепловые насосы - за ними будущее!!!

Senturio поза форумом  
Старий 05.11.2009, 13:57   #45
Живу я тут
  
 
Аватар для Sheva
 
Реєстрація: 19.09.2009
Звідки Ви: Харьков
Дописи: 1.018
сказав Дякую: 137
сказали Дякую 426 раз(и) в 231 повідомленні
Re: Мой новый аквариум 720 л. ===www.aquaforum.ua===

у нас в доме нет несущих стен.
Только коллоны и все. Стен при сдаче тоже не было. т.е. просто квадрат продавался )))

Sheva поза форумом  


Share/Bookmark

Зачинена тема


Тут присутні: 1 (учасників - 0 , гостей - 1)
 
Параметри теми
Параметри перегляду

Ваші права у розділі
Ви не можете створювати теми
Ви не можете писати дописи
Ви не можете долучати файли
Ви не можете редагувати дописи

BB-код є Увімк.
Усмішки Увімк.
[IMG] код Увімк.
HTML код Вимк.

Швидкий перехід


Часовий пояс GMT +3. Поточний час: 08:22.


vBulletin 3.8.7 ; Copyright © 2000-2026 Jelsoft Enterprises Limited
Переклад: © Віталій Стопчанський, 2004-2010
(с)Бешлега Олександр Анатолійович, 2002-2025. Використання матеріалів сайту без посилання на джерело заборонено.
Дякуємо за ліцензійну версію форума компанію Барбус, представника торгової марки Sera в Україні.


no new posts