На головну сторінку Аквафорум
На головну сторінку




Назад   Аквафорум - форум акваріумістів та тераріумістів > Акваріум та обладнання > "Самоделкин" > Аквариумная мебель (тумбы, стойки и т.п.)
Аукцион Реєстрація ЧаПи Учасники Календар Нинішні дописи

Примітки

Відповідь
 
Параметри теми Параметри перегляду
Старий 18.05.2011, 22:30   #1
стойка на две банки по 240 л
Придивляюся

Реєстрація: 18.05.2011
Звідки Ви: Казахстан
Дописи: 15
 

сказав Дякую: 22
сказали Дякую 25 раз(и) в 5 повідомленні
beka_pvl beka_pvl поза форумом 18.05.2011, 22:30
Рейтинг: ()

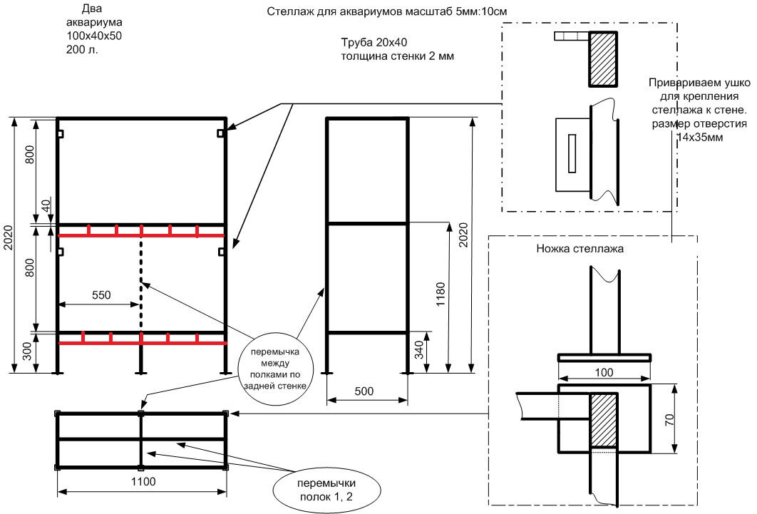
Доброй ночи!!!
Коллеги нужен ваш совет

Хочу заказать стеллаж для 2 аквариумов (размеры банок 120х40х50).
Стеллаж будет сварной их квадратной трубы 40х20 с полимерным покрытием цвета медь.
Дополнительно будет фиксироваться к стене 4 анкерами.

Задняя стенка стеллажа будет закрыта мебельными щитами темно зеленного цвета, полки из столешницы того же цвета.

Что скажите будет держать две банки считай по 240 литров плюс грунт итого кило так 600?, не будет ли прогиба полок? 40х20трубы хватит?. Размеры стеллажа правильно подобрал? Чертеж прилагаю. Жду советов и предложении. Заранее благодарен!

Мініатюри долучень
Щоб збільшити малюнок, клацніть по ньому
Назва:  стеллаж для аквариума6_v2.jpg
Переглядів: 1795
Розмір:  67,3 КБ
ID:	143140  

Переглядів: 3841
Відповісти з цитуванням
Старий 18.05.2011, 23:01   #2
Луганский клуб аквариумистов
  
 
Аватар для BlackRider
 
Реєстрація: 17.11.2010
Звідки Ви: Лисичанск
Дописи: 137
сказав Дякую: 100
сказали Дякую 112 раз(и) в 43 повідомленні
Re: стойка на две банки по 240 л ===www.aquaforum.ua===

Я думаю, что лучше делать из трубы 40х40 или для предотвращения прогибов делать такие усилители -
Мініатюри долучень
Щоб збільшити малюнок, клацніть по ньому
Назва:  стеллаж для аквариума6_v2.jpg
Переглядів: 544
Розмір:  88,6 КБ
ID:	143150  


__________________


BlackRider поза форумом   Відповісти з цитуванням
Старий 20.05.2011, 23:06   #3
Придивляюся
  
 
Реєстрація: 18.05.2011
Звідки Ви: Казахстан
Дописи: 15
сказав Дякую: 22
сказали Дякую 25 раз(и) в 5 повідомленні
Re: стойка на две банки по 240 л ===www.aquaforum.ua===

Цитата:
Допис від BlackRider Переглянути допис
Я думаю, что лучше делать из трубы 40х40 или для предотвращения прогибов делать такие усилители -
вы меня пугаете?
с такими усилителями весь вид портится.
может тогда уменьшим ширину до 110см а банки по 200л
плюс дополнительную вертикальную стойку между 1 и 2 полкой
Мініатюри долучень
Щоб збільшити малюнок, клацніть по ньому
Назва:  стеллаж для аквариума5_v2.jpg
Переглядів: 462
Розмір:  76,5 КБ
ID:	143748  

beka_pvl поза форумом   Відповісти з цитуванням
Старий 20.05.2011, 23:40   #4
Луганский клуб аквариумистов
  
 
Аватар для BlackRider
 
Реєстрація: 17.11.2010
Звідки Ви: Лисичанск
Дописи: 137
сказав Дякую: 100
сказали Дякую 112 раз(и) в 43 повідомленні
Re: стойка на две банки по 240 л ===www.aquaforum.ua===

Ну тогда передние стенки сделать двойными с короткими перемычками - прогиба не будет. И можно потом чем-нибудь задекорировать (дсп, пластик и т.д.)
Мініатюри долучень
Щоб збільшити малюнок, клацніть по ньому
Назва:  стеллаж для аквариума5_v2.jpg
Переглядів: 515
Розмір:  119,7 КБ
ID:	143772  


__________________


BlackRider поза форумом   Відповісти з цитуванням
Старий 21.05.2011, 00:36   #5
Живу я тут
  
 
Аватар для Sem
 
Реєстрація: 17.09.2004
Звідки Ви: Киев, Троещина
Дописи: 14.486
сказав Дякую: 4.642
сказали Дякую 8.508 раз(и) в 4.382 повідомленні
Надіслати повідомлення для Sem на ICQ Надіслати повідомлення для Sem на Skype
Re: стойка на две банки по 240 л ===www.aquaforum.ua===

Цитата:
Допис від beka_pvl Переглянути допис
плюс дополнительную вертикальную стойку между 1 и 2 полкой
да.
у меня 500 стоят так.
ДСП 16 плюс пенопласт.
2 метра на 60
__________________
Страна не ублюдков и не воров.


__________________

Sem поза форумом   Відповісти з цитуванням
Старий 15.06.2011, 21:58   #6
Придивляюся
  
 
Реєстрація: 18.05.2011
Звідки Ви: Казахстан
Дописи: 15
сказав Дякую: 22
сказали Дякую 25 раз(и) в 5 повідомленні
Re: стойка на две банки по 240 л ===www.aquaforum.ua===

вот все таки родился стеллаж!!!

цена вопроса 10000(металл 40х40х2)+1075(краска)+2500(работа)= 13575тнг.


чертеж окончательного варианта
Мініатюри долучень
Щоб збільшити малюнок, клацніть по ньому
Назва:  стеллаж для аквариума5_v2_40х40х2.jpg
Переглядів: 1290
Розмір:  72,6 КБ
ID:	149538  

beka_pvl поза форумом   Відповісти з цитуванням


Share/Bookmark

Відповідь


Тут присутні: 1 (учасників - 0 , гостей - 1)
 

Ваші права у розділі
Ви не можете створювати теми
Ви не можете писати дописи
Ви не можете долучати файли
Ви не можете редагувати дописи

BB-код є Увімк.
Усмішки Увімк.
[IMG] код Увімк.
HTML код Вимк.

Швидкий перехід


Часовий пояс GMT +3. Поточний час: 09:45.


vBulletin 3.8.7 ; Copyright © 2000-2026 Jelsoft Enterprises Limited
Переклад: © Віталій Стопчанський, 2004-2010
(с)Бешлега Олександр Анатолійович, 2002-2025. Використання матеріалів сайту без посилання на джерело заборонено.
Дякуємо за ліцензійну версію форума компанію Барбус, представника торгової марки Sera в Україні.


no new posts