 |
|
01.04.2013, 20:36
|
#376
|
|
Moderator
Реєстрація: 15.05.2006
Звідки Ви: Днепр
Дописи: 8.585
сказав Дякую: 2.773
сказали Дякую 5.289 раз(и) в 2.715 повідомленні
|
Re: +Светильники, Крышки, Инкубаторы, Фильтры по вашему заказу . Украина ===www.aquaforum.ua===
Технические характеристики крышки:
предназначена для аквариума размерами 800×340;
лючок для кормления;
отверстия для проводов и шлангов на задней части крышки;
отсек для размещения ЭПРА;
__________________
Аquaritm.com.ua
изготовление светильников, выносок, отсадников, фильтров и т.п. тел. KS 067 567 12 50 / МТС 095 858 15 01 Александр.
__________________ 
|
|
|
02.04.2013, 21:29
|
#377
|
|
Moderator
Реєстрація: 15.05.2006
Звідки Ви: Днепр
Дописи: 8.585
сказав Дякую: 2.773
сказали Дякую 5.289 раз(и) в 2.715 повідомленні
|
Re: +Светильники, Крышки, Инкубаторы, Фильтры по вашему заказу . Украина ===www.aquaforum.ua===
Технические характеристики крышки:
предназначена для прямоугольного аквариума размерами 1000х400;
установлена электроника на 4 лампы Т5 типа по 39 Вт каждая;
отдельные провода 220В для каждой пары ламп;
нижняя кромка на аквариум;
два 80 мм кулера;
лючок для кормления;
отверстия для проводов и шлангов на задней части крышки;
выключатели для ламп и кулеров.
__________________
Аquaritm.com.ua
изготовление светильников, выносок, отсадников, фильтров и т.п. тел. KS 067 567 12 50 / МТС 095 858 15 01 Александр.
__________________ 
|
|
|
05.04.2013, 14:47
|
#378
|
|
Moderator
Реєстрація: 15.05.2006
Звідки Ви: Днепр
Дописи: 8.585
сказав Дякую: 2.773
сказали Дякую 5.289 раз(и) в 2.715 повідомленні
|
Re: +Светильники, Крышки, Инкубаторы, Фильтры по вашему заказу . Украина ===www.aquaforum.ua===
Технические характеристики крышки:
предназначена для прямоугольного аквариума размерами 400х250;
установлено два патрона под Е14 цоколь;
лючок для кормления;
выключатель для ламп.
__________________
Аquaritm.com.ua
изготовление светильников, выносок, отсадников, фильтров и т.п. тел. KS 067 567 12 50 / МТС 095 858 15 01 Александр.
__________________ 
|
|
|
09.04.2013, 12:04
|
#379
|
|
Moderator
Реєстрація: 15.05.2006
Звідки Ви: Днепр
Дописи: 8.585
сказав Дякую: 2.773
сказали Дякую 5.289 раз(и) в 2.715 повідомленні
|
Re: +Светильники, Крышки, Инкубаторы, Фильтры по вашему заказу . Украина ===www.aquaforum.ua===
Универсальный террариум для птицеедов размерами 300х300х300
__________________
Аquaritm.com.ua
изготовление светильников, выносок, отсадников, фильтров и т.п. тел. KS 067 567 12 50 / МТС 095 858 15 01 Александр.
__________________ 
|
|
|
10.04.2013, 13:02
|
#380
|
|
Moderator
Реєстрація: 15.05.2006
Звідки Ви: Днепр
Дописи: 8.585
сказав Дякую: 2.773
сказали Дякую 5.289 раз(и) в 2.715 повідомленні
|
Re: +Светильники, Крышки, Инкубаторы, Фильтры по вашему заказу . Украина ===www.aquaforum.ua===
Технические характеристики крышки:
- предназначена для прямоугольного аквариума размерами 1005х255;
- установлена съемная световая балка на 1х14 Вт Т5;
- лючок для кормления;
- выключатель для ламп.
__________________
Аquaritm.com.ua
изготовление светильников, выносок, отсадников, фильтров и т.п. тел. KS 067 567 12 50 / МТС 095 858 15 01 Александр.
__________________ 
|
|
|
11.04.2013, 12:21
|
#381
|
|
Moderator
Реєстрація: 15.05.2006
Звідки Ви: Днепр
Дописи: 8.585
сказав Дякую: 2.773
сказали Дякую 5.289 раз(и) в 2.715 повідомленні
|
Re: +Светильники, Крышки, Инкубаторы, Фильтры по вашему заказу . Украина ===www.aquaforum.ua===
Близнецы братья предыдущего светильника:
__________________
Аquaritm.com.ua
изготовление светильников, выносок, отсадников, фильтров и т.п. тел. KS 067 567 12 50 / МТС 095 858 15 01 Александр.
__________________ 
|
|
|
12.04.2013, 13:39
|
#382
|
|
Moderator
Реєстрація: 15.05.2006
Звідки Ви: Днепр
Дописи: 8.585
сказав Дякую: 2.773
сказали Дякую 5.289 раз(и) в 2.715 повідомленні
|
Re: +Светильники, Крышки, Инкубаторы, Фильтры по вашему заказу . Украина ===www.aquaforum.ua===
Перегородка для аквариума:
__________________
Аquaritm.com.ua
изготовление светильников, выносок, отсадников, фильтров и т.п. тел. KS 067 567 12 50 / МТС 095 858 15 01 Александр.
__________________ 
|
|
|
14.04.2013, 15:57
|
#383
|
|
Moderator
Реєстрація: 15.05.2006
Звідки Ви: Днепр
Дописи: 8.585
сказав Дякую: 2.773
сказали Дякую 5.289 раз(и) в 2.715 повідомленні
|
Re: +Светильники, Крышки, Инкубаторы, Фильтры по вашему заказу . Украина ===www.aquaforum.ua===
Технические характеристики крышки:
предназначена для прямоугольного аквариума размерами 800х350;
установлена электроника для четырех ламп Т5 типа по 24 Вт;
установлены отражатели из анодированного алюминия;
внешнее исполнение отсека для ЭПР;
лючок для кормления;
выключатель для ламп.
__________________
Аquaritm.com.ua
изготовление светильников, выносок, отсадников, фильтров и т.п. тел. KS 067 567 12 50 / МТС 095 858 15 01 Александр.
__________________ 
|
|
|
16.04.2013, 10:47
|
#384
|
|
Moderator
Реєстрація: 15.05.2006
Звідки Ви: Днепр
Дописи: 8.585
сказав Дякую: 2.773
сказали Дякую 5.289 раз(и) в 2.715 повідомленні
|
Re: +Светильники, Крышки, Инкубаторы, Фильтры по вашему заказу . Украина ===www.aquaforum.ua===
Два инкубатора для артемии:
__________________
Аquaritm.com.ua
изготовление светильников, выносок, отсадников, фильтров и т.п. тел. KS 067 567 12 50 / МТС 095 858 15 01 Александр.
__________________ 
|
|
|
17.04.2013, 20:15
|
#385
|
|
Moderator
Реєстрація: 15.05.2006
Звідки Ви: Днепр
Дописи: 8.585
сказав Дякую: 2.773
сказали Дякую 5.289 раз(и) в 2.715 повідомленні
|
Re: +Светильники, Крышки, Инкубаторы, Фильтры по вашему заказу . Украина ===www.aquaforum.ua===
Технические характеристики крышки:
предназначена для овального аквариума размерами 1000х400;
установлена электроника для трех ламп Т8 типа по 30 Вт;
пассивная вениляция;
лючок для кормления;
выключатель для ламп.
__________________
Аquaritm.com.ua
изготовление светильников, выносок, отсадников, фильтров и т.п. тел. KS 067 567 12 50 / МТС 095 858 15 01 Александр.
__________________ 
|
|
|
23.04.2013, 12:53
|
#386
|
|
Moderator
Реєстрація: 15.05.2006
Звідки Ви: Днепр
Дописи: 8.585
сказав Дякую: 2.773
сказали Дякую 5.289 раз(и) в 2.715 повідомленні
|
Re: +Светильники, Крышки, Инкубаторы, Фильтры по вашему заказу . Украина ===www.aquaforum.ua===
балка получился со следующими техническими характеристиками:
размеры 500х260;
4 лампы TC-L типа по 36 Вт;
установлены отражатели из анодированного алюминия;
раздельное включение и раздельные шнуры питания на каждую пару ламп;
ночная светодиодная подсветка;
установлены выключатели на лампы и ночную подсветку.
__________________
Аquaritm.com.ua
изготовление светильников, выносок, отсадников, фильтров и т.п. тел. KS 067 567 12 50 / МТС 095 858 15 01 Александр.
__________________ 
|
|
|
25.04.2013, 17:45
|
#387
|
|
Moderator
Реєстрація: 15.05.2006
Звідки Ви: Днепр
Дописи: 8.585
сказав Дякую: 2.773
сказали Дякую 5.289 раз(и) в 2.715 повідомленні
|
Re: +Светильники, Крышки, Инкубаторы, Фильтры по вашему заказу . Украина ===www.aquaforum.ua===
Технические характеристики данной выноски:
материал — прозрачный немецкий литой акрил толщиной 4 мм;
размеры 600х300х150;
количество отсеков — 6;
съемные переборки — 2 и 4;
распылитель — вдоль задней стенки;
съемное фальшдно;
дно из пищевой нержавейки;
прослойка из вакуумной резины;
болты и гайки из нержавейки.
эта выноска продается, стоимость 1150 грн.
__________________
Аquaritm.com.ua
изготовление светильников, выносок, отсадников, фильтров и т.п. тел. KS 067 567 12 50 / МТС 095 858 15 01 Александр.
__________________ 
|
|
|
28.04.2013, 13:44
|
#388
|
|
Moderator
Реєстрація: 15.05.2006
Звідки Ви: Днепр
Дописи: 8.585
сказав Дякую: 2.773
сказали Дякую 5.289 раз(и) в 2.715 повідомленні
|
Re: +Светильники, Крышки, Инкубаторы, Фильтры по вашему заказу . Украина ===www.aquaforum.ua===
Светильник на выноску на 4 КЛЛ под Е14 цоколь
__________________
Аquaritm.com.ua
изготовление светильников, выносок, отсадников, фильтров и т.п. тел. KS 067 567 12 50 / МТС 095 858 15 01 Александр.
__________________ 
|
|
|
02.05.2013, 11:55
|
#389
|
|
Moderator
Реєстрація: 15.05.2006
Звідки Ви: Днепр
Дописи: 8.585
сказав Дякую: 2.773
сказали Дякую 5.289 раз(и) в 2.715 повідомленні
|
Re: +Светильники, Крышки, Инкубаторы, Фильтры по вашему заказу . Украина ===www.aquaforum.ua===
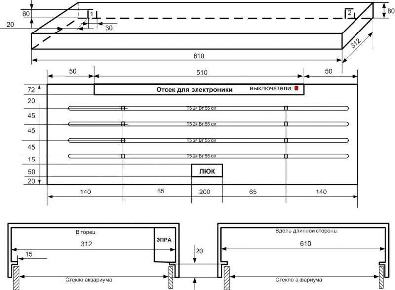
Проект крышки
__________________
Аquaritm.com.ua
изготовление светильников, выносок, отсадников, фильтров и т.п. тел. KS 067 567 12 50 / МТС 095 858 15 01 Александр.
__________________ 
|
|
|
03.05.2013, 11:00
|
#390
|
|
Moderator
Реєстрація: 15.05.2006
Звідки Ви: Днепр
Дописи: 8.585
сказав Дякую: 2.773
сказали Дякую 5.289 раз(и) в 2.715 повідомленні
|
Re: +Светильники, Крышки, Инкубаторы, Фильтры по вашему заказу . Украина ===www.aquaforum.ua===
Выноска из поста 388 все еще продается.
__________________
Аquaritm.com.ua
изготовление светильников, выносок, отсадников, фильтров и т.п. тел. KS 067 567 12 50 / МТС 095 858 15 01 Александр.
__________________ 
|
|
|
 |
|
|
Тут присутні: 1 (учасників - 0 , гостей - 1)
|
|
|
Ваші права у розділі
|
Ви не можете створювати теми
Ви не можете писати дописи
Ви не можете долучати файли
Ви не можете редагувати дописи
HTML код Вимк.
|
|
|
Часовий пояс GMT +3. Поточний час: 14:14.
|