 |
|
16.07.2013, 12:35
|
#421
|
|
Moderator
Реєстрація: 15.05.2006
Звідки Ви: Днепр
Дописи: 8.585
сказав Дякую: 2.773
сказали Дякую 5.289 раз(и) в 2.715 повідомленні
|
Re: +Светильники, Крышки, Инкубаторы, Фильтры по вашему заказу . Украина ===www.aquaforum.ua===
Три биофильтра 350х150х150
__________________
Аquaritm.com.ua
изготовление светильников, выносок, отсадников, фильтров и т.п. тел. KS 067 567 12 50 / МТС 095 858 15 01 Александр.
__________________ 
|
|
|
18.07.2013, 20:23
|
#422
|
|
Moderator
Реєстрація: 15.05.2006
Звідки Ви: Днепр
Дописи: 8.585
сказав Дякую: 2.773
сказали Дякую 5.289 раз(и) в 2.715 повідомленні
|
Re: +Светильники, Крышки, Инкубаторы, Фильтры по вашему заказу . Украина ===www.aquaforum.ua===
Технические характеристики данной крышки:
предназначена для прямоугольного аквариума размерами 1100×430;
установлена электроника для четырех ламп Т5 типа по 39 Вт;
лючок для кормления; два 80 мм кулера;
вылючатели;
отверстия для проводов и шлангов на задней части крышки.
__________________
Аquaritm.com.ua
изготовление светильников, выносок, отсадников, фильтров и т.п. тел. KS 067 567 12 50 / МТС 095 858 15 01 Александр.
__________________ 
|
|
|
21.07.2013, 21:25
|
#423
|
|
Moderator
Реєстрація: 15.05.2006
Звідки Ви: Днепр
Дописи: 8.585
сказав Дякую: 2.773
сказали Дякую 5.289 раз(и) в 2.715 повідомленні
|
Re: +Светильники, Крышки, Инкубаторы, Фильтры по вашему заказу . Украина ===www.aquaforum.ua===
Балка на 3х24 Вт Т5
__________________
Аquaritm.com.ua
изготовление светильников, выносок, отсадников, фильтров и т.п. тел. KS 067 567 12 50 / МТС 095 858 15 01 Александр.
__________________ 
|
|
|
22.07.2013, 12:40
|
#424
|
|
Moderator
Реєстрація: 15.05.2006
Звідки Ви: Днепр
Дописи: 8.585
сказав Дякую: 2.773
сказали Дякую 5.289 раз(и) в 2.715 повідомленні
|
Re: +Светильники, Крышки, Инкубаторы, Фильтры по вашему заказу . Украина ===www.aquaforum.ua===
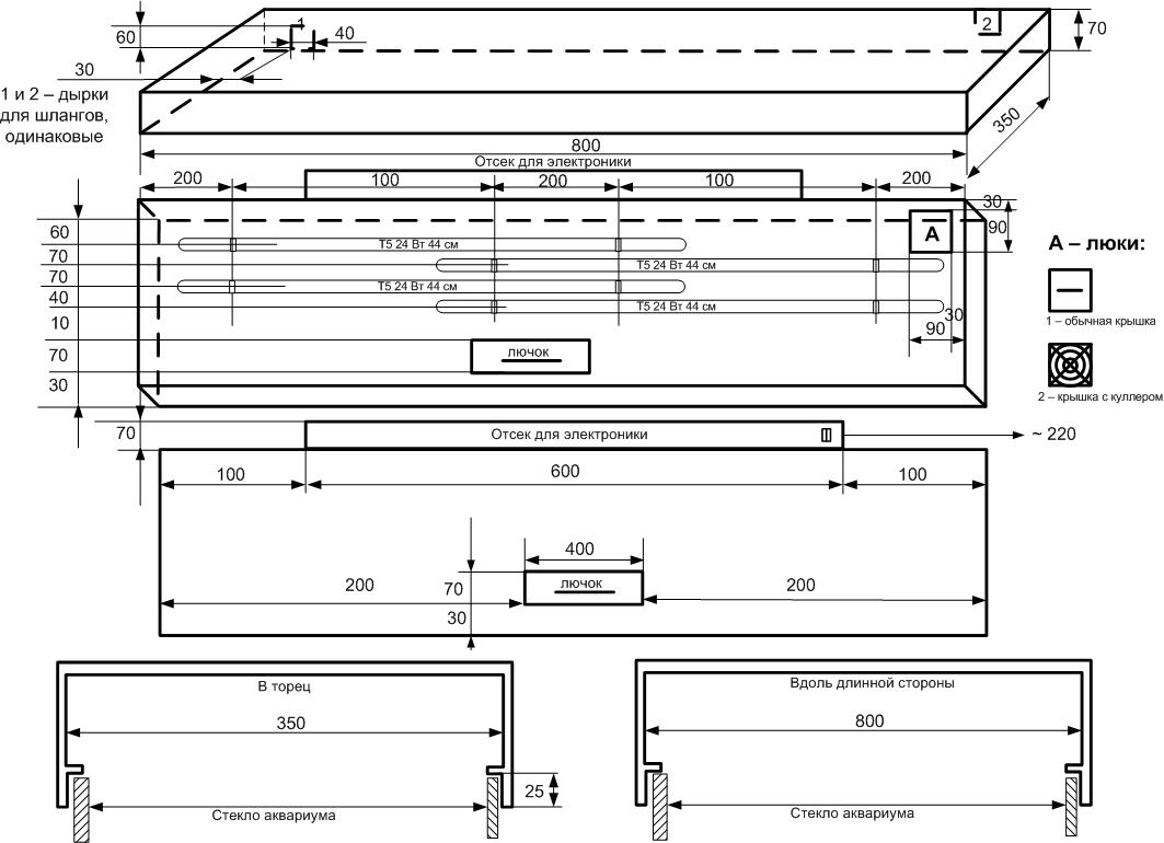
Технические характеристики крышки:
предназначена для прямоугольного аквариума размерами 800х350;
установлена электроника на четыре лампы Т8 типа мощностью по 18 Вт;
отражатели в виде трапеции из анодированного алюминия;
ночная светодиодная подсветка;
два 80 мм кулера;
отверстия под провода и шланги;
выключатель для ламп.
__________________
Аquaritm.com.ua
изготовление светильников, выносок, отсадников, фильтров и т.п. тел. KS 067 567 12 50 / МТС 095 858 15 01 Александр.
__________________ 
|
|
|
24.07.2013, 14:30
|
#425
|
|
Moderator
Реєстрація: 15.05.2006
Звідки Ви: Днепр
Дописи: 8.585
сказав Дякую: 2.773
сказали Дякую 5.289 раз(и) в 2.715 повідомленні
|
Re: +Светильники, Крышки, Инкубаторы, Фильтры по вашему заказу . Украина ===www.aquaforum.ua===
Данная крышка обладает следующими техническими характеристиками:
- предназначена для прямоугольного аквариума размерами 1500х500;
- лючок для кормления;
- установлена электроника на две лампы Т8 типа по 40 Вт;
- выключатель;
- отверстия для проводов и шлангов на задней части крышки.
__________________
Аquaritm.com.ua
изготовление светильников, выносок, отсадников, фильтров и т.п. тел. KS 067 567 12 50 / МТС 095 858 15 01 Александр.
__________________ 
|
|
|
29.07.2013, 12:05
|
#426
|
|
Moderator
Реєстрація: 15.05.2006
Звідки Ви: Днепр
Дописи: 8.585
сказав Дякую: 2.773
сказали Дякую 5.289 раз(и) в 2.715 повідомленні
|
Re: +Светильники, Крышки, Инкубаторы, Фильтры по вашему заказу . Украина ===www.aquaforum.ua===
Технические характеристики данной крышки:
предназначена для прямоугольного аквариума размерами 1200×550;
установлена электроника для двух ламп Т5 типа по 54 Вт;
лючок для кормления;
выключатели;
отверстия для проводов и шлангов на задней части крышки.
__________________
Аquaritm.com.ua
изготовление светильников, выносок, отсадников, фильтров и т.п. тел. KS 067 567 12 50 / МТС 095 858 15 01 Александр.
__________________ 
|
|
|
30.07.2013, 12:49
|
#427
|
|
Moderator
Реєстрація: 15.05.2006
Звідки Ви: Днепр
Дописи: 8.585
сказав Дякую: 2.773
сказали Дякую 5.289 раз(и) в 2.715 повідомленні
|
Re: +Светильники, Крышки, Инкубаторы, Фильтры по вашему заказу . Украина ===www.aquaforum.ua===
Технические характеристики крышки:
предназначена для прямоугольного аквариума размерами 1700х450;
установку электроники осуществляет заказчик;
оригинальная «зеркальная» конструкция — открываются обе части крышки, аквариум установлен торцом к стене;
отверстия под провода и шланги спрятаны внутрь декоративного кармана.
__________________
Аquaritm.com.ua
изготовление светильников, выносок, отсадников, фильтров и т.п. тел. KS 067 567 12 50 / МТС 095 858 15 01 Александр.
__________________ 
|
|
|
01.08.2013, 13:14
|
#428
|
|
Moderator
Реєстрація: 15.05.2006
Звідки Ви: Днепр
Дописи: 8.585
сказав Дякую: 2.773
сказали Дякую 5.289 раз(и) в 2.715 повідомленні
|
Re: +Светильники, Крышки, Инкубаторы, Фильтры по вашему заказу . Украина ===www.aquaforum.ua===
Данная крышка обладает следующими техническими характеристиками:
предназначена для прямоугольного аквариума размерами 1250х430;
лючок для кормления;
установлена электроника на три лампы Т5 типа по 54 Вт;
два 80 мм кулера;
выключатель;
отверстия для проводов и шлангов на задней части крышки.
__________________
Аquaritm.com.ua
изготовление светильников, выносок, отсадников, фильтров и т.п. тел. KS 067 567 12 50 / МТС 095 858 15 01 Александр.
__________________ 
|
|
|
07.08.2013, 12:23
|
#429
|
|
Moderator
Реєстрація: 15.05.2006
Звідки Ви: Днепр
Дописи: 8.585
сказав Дякую: 2.773
сказали Дякую 5.289 раз(и) в 2.715 повідомленні
|
Re: +Светильники, Крышки, Инкубаторы, Фильтры по вашему заказу . Украина ===www.aquaforum.ua===
Террариум для паука 300х300х300 с регулируемой вентиляцией:
__________________
Аquaritm.com.ua
изготовление светильников, выносок, отсадников, фильтров и т.п. тел. KS 067 567 12 50 / МТС 095 858 15 01 Александр.
__________________ 
|
|
|
|
cказали "Дякую" red1157 за цей допис:
|
|
11.08.2013, 15:29
|
#430
|
|
Moderator
Реєстрація: 15.05.2006
Звідки Ви: Днепр
Дописи: 8.585
сказав Дякую: 2.773
сказали Дякую 5.289 раз(и) в 2.715 повідомленні
|
Re: +Светильники, Крышки, Инкубаторы, Фильтры по вашему заказу . Украина ===www.aquaforum.ua===
Конкурс на эрудицию и сообразительность 
Кто угадает для чего этот домик из акрила 25 - 29 мм ?
__________________
Аquaritm.com.ua
изготовление светильников, выносок, отсадников, фильтров и т.п. тел. KS 067 567 12 50 / МТС 095 858 15 01 Александр.
__________________ 
|
|
|
|
cказали "Дякую" red1157 за цей допис:
|
|
13.08.2013, 10:36
|
#431
|
|
Moderator
Реєстрація: 15.05.2006
Звідки Ви: Днепр
Дописи: 8.585
сказав Дякую: 2.773
сказали Дякую 5.289 раз(и) в 2.715 повідомленні
|
Re: +Светильники, Крышки, Инкубаторы, Фильтры по вашему заказу . Украина ===www.aquaforum.ua===
Технические характеристики данной крышки:
предназначена для прямоугольного аквариума размерами 2000×600;
установлена электроника для четырёх ламп Т8 типа по 58 Вт;
люк для кормления;
выключатели;
отверстия для проводов и шлангов на задней части крышки.
__________________
Аquaritm.com.ua
изготовление светильников, выносок, отсадников, фильтров и т.п. тел. KS 067 567 12 50 / МТС 095 858 15 01 Александр.
__________________ 
|
|
|
16.08.2013, 12:03
|
#432
|
|
Moderator
Реєстрація: 15.05.2006
Звідки Ви: Днепр
Дописи: 8.585
сказав Дякую: 2.773
сказали Дякую 5.289 раз(и) в 2.715 повідомленні
|
Re: +Светильники, Крышки, Инкубаторы, Фильтры по вашему заказу . Украина ===www.aquaforum.ua===
Технические характеристики крышки:
- предназначена для прямоугольного аквариума размерами 600х350;
- установлена электроника на три лампы Т5 типа по 24 Вт;
- установлены отражатели в виде трапеции как у Juwel;
- система вентиляции, установлен кулер на 80 мм;
- отверстие под провода и шланги.
__________________
Аquaritm.com.ua
изготовление светильников, выносок, отсадников, фильтров и т.п. тел. KS 067 567 12 50 / МТС 095 858 15 01 Александр.
__________________ 
|
|
|
18.08.2013, 17:47
|
#433
|
|
Moderator
Реєстрація: 15.05.2006
Звідки Ви: Днепр
Дописи: 8.585
сказав Дякую: 2.773
сказали Дякую 5.289 раз(и) в 2.715 повідомленні
|
Re: +Светильники, Крышки, Инкубаторы, Фильтры по вашему заказу . Украина ===www.aquaforum.ua===
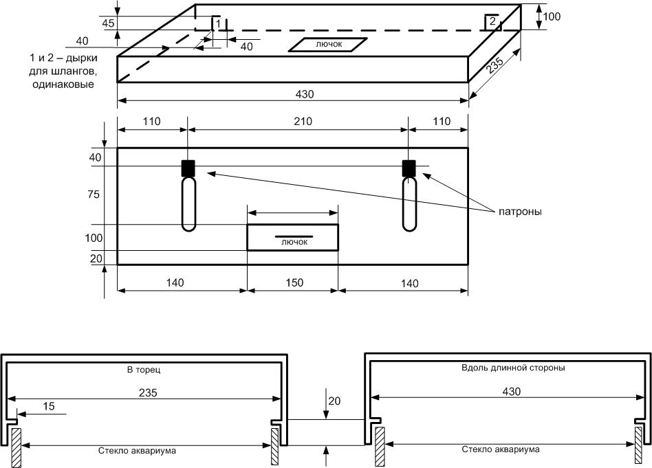
Данная крышка обладает следующими техническими характеристиками: - предназначена для прямоугольного аквариума размерами 1200х400;
- лючок для кормления;
- установлена электроника на четыре лампы Т5 типа по 54 Вт;
- отражатели из анодированного алюминия в виде трапеции;
- ночная светодиодная подсветка;
- два 80 мм кулера; выключатель;
- отверстия для проводов и шлангов на задней части крышки.
__________________
Аquaritm.com.ua
изготовление светильников, выносок, отсадников, фильтров и т.п. тел. KS 067 567 12 50 / МТС 095 858 15 01 Александр.
__________________ 
|
|
|
19.08.2013, 12:03
|
#434
|
|
Moderator
Реєстрація: 15.05.2006
Звідки Ви: Днепр
Дописи: 8.585
сказав Дякую: 2.773
сказали Дякую 5.289 раз(и) в 2.715 повідомленні
|
Re: +Светильники, Крышки, Инкубаторы, Фильтры по вашему заказу . Украина ===www.aquaforum.ua===
Набор из 4 инкубаторов для икры:
__________________
Аquaritm.com.ua
изготовление светильников, выносок, отсадников, фильтров и т.п. тел. KS 067 567 12 50 / МТС 095 858 15 01 Александр.
__________________ 
|
|
|
20.08.2013, 10:44
|
#435
|
|
Придивляюся
Реєстрація: 10.06.2010
Звідки Ви: Севастополь
Дописи: 59
сказав Дякую: 121
сказали Дякую 50 раз(и) в 31 повідомленні
|
Re: +Светильники, Крышки, Инкубаторы, Фильтры по вашему заказу . Украина ===www.aquaforum.ua===
Получил вчера выноску ,спасибо,понравилась.
__________________
тел.0959017749
|
|
|
|
cказали "Дякую" KHBneon за цей допис:
|
|
 |
|
|
Тут присутні: 4 (учасників - 0 , гостей - 4)
|
|
|
Ваші права у розділі
|
Ви не можете створювати теми
Ви не можете писати дописи
Ви не можете долучати файли
Ви не можете редагувати дописи
HTML код Вимк.
|
|
|
Часовий пояс GMT +3. Поточний час: 16:51.
|