 |
17.03.2011, 17:57
|
#1
|
|
тумба под 520л
Живу я тут
Реєстрація: 13.12.2008
Звідки Ви: Харьков
Дописи: 122
сказав Дякую: 42
сказали Дякую 35 раз(и) в 22 повідомленні

17.03.2011, 17:57
Рейтинг:
()
Планирую сделать каркас для тумбы из профильной трубы 40*40*2, диагонали из трубы 20*20*2. Тумба под аквариум 140*53*70(В). Хочу сделать с одной перегородкой посредине для удобства так как в тумбе бедет САМП. Сверху будет установлена столешница из влагостойкой фанеры или OSB. Надежно ли делать такие пролеты по 70 см ?

|
|
Переглядів: 4826
|
17.03.2011, 18:30
|
#2
|
|
Бан за нарушения
Реєстрація: 06.11.2007
Звідки Ви: Донецк, зона АТО
Дописи: 19.780
сказав Дякую: 5.789
сказали Дякую 17.707 раз(и) в 6.926 повідомленні
|
Re: тумба под 520л ===www.aquaforum.ua===
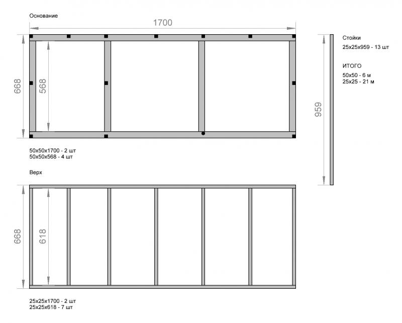
Я бы вместо диагоналей поставил стойки. Перекос и фанера или ОСБ или ДСП удержит.
Вот мой чертеж каркаса:
__________________
[I][B][COLOR=blue]С уважением, Сергей Таранченко[/COLOR][/B][/I]
|
|
|
17.03.2011, 18:32
|
#3
|
|
Бан за нарушения
Реєстрація: 13.07.2008
Звідки Ви: Николаевка
Дописи: 123
сказав Дякую: 35
сказали Дякую 49 раз(и) в 27 повідомленні
|
Re: тумба под 520л ===www.aquaforum.ua===
Думаю выдерет. Вот фото там аквариум 2000х700х700( 1000 литров ), а пролеты около метра. 
|
|
|
17.03.2011, 18:40
|
#4
|
|
Живу я тут
Реєстрація: 13.12.2008
Звідки Ви: Харьков
Дописи: 122
сказав Дякую: 42
сказали Дякую 35 раз(и) в 22 повідомленні
|
Re: тумба под 520л ===www.aquaforum.ua===
Цитата:
Допис від Starcomputer
Перекос и фанера или ОСБ или ДСП удержит.
|
фанера будет в качестве столешницы,обшиватся тумба будет тонким ЛДСП только для красоты, сзади возможно будет добавить несколько вертикальных опор, но спереди хочется чтобы тумба состояла из 2 отсеков.
kashik, про эту тумбу и аквариум я читал, там метал потолще.
|
|
|
19.03.2011, 20:50
|
#5
|
|
Живу я тут
Реєстрація: 13.12.2008
Звідки Ви: Харьков
Дописи: 122
сказав Дякую: 42
сказали Дякую 35 раз(и) в 22 повідомленні
|
Re: тумба под 520л ===www.aquaforum.ua===
так все таки нужно ли как нибудь усиливать такие пролеты(70см) или так нормально будет?(труба 40*40*2)
|
|
|
 |
|
Тут присутні: 1 (учасників - 0 , гостей - 1)
|
|
|
Ваші права у розділі
|
Ви не можете створювати теми
Ви не можете писати дописи
Ви не можете долучати файли
Ви не можете редагувати дописи
HTML код Вимк.
|
|
|
Часовий пояс GMT +3. Поточний час: 20:22.
|